Skip to content
YSK architecture
About
Architecture
Interior
Renovation
Contact
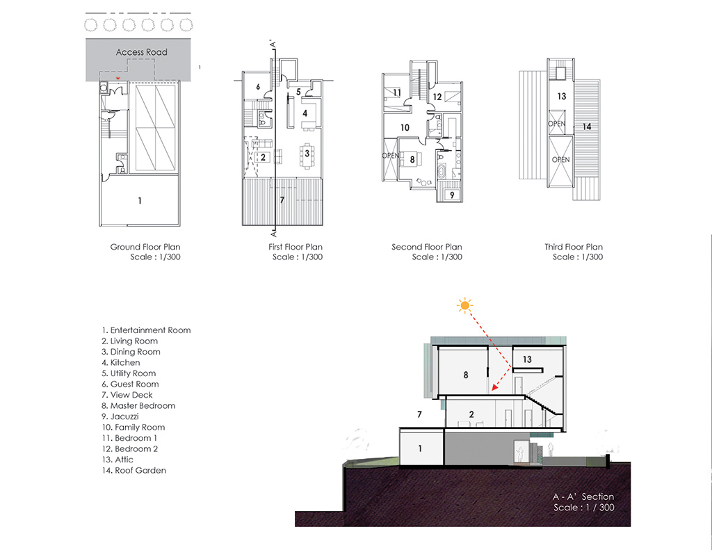
Jungdong Townhouse
Location: Busan, Korea
Type: Residential
Year: 2008
Status: Proposal
Credit:
Youngsang Kim, Design
Loading Comments...
Write a Comment...
Email
Name
Website
Subscribe
Subscribed
YSK architecture
Sign me up
Already have a WordPress.com account?
Log in now.
YSK architecture
Subscribe
Subscribed
Sign up
Log in
Copy shortlink
Report this content
View post in Reader
Manage subscriptions
Collapse this bar