Gustaffson House

Location: LA, USA
Type: Detached House
Year: 2016
Status: Design Proposal
Credit: YSK Architecture
Youngsang Kim, Design

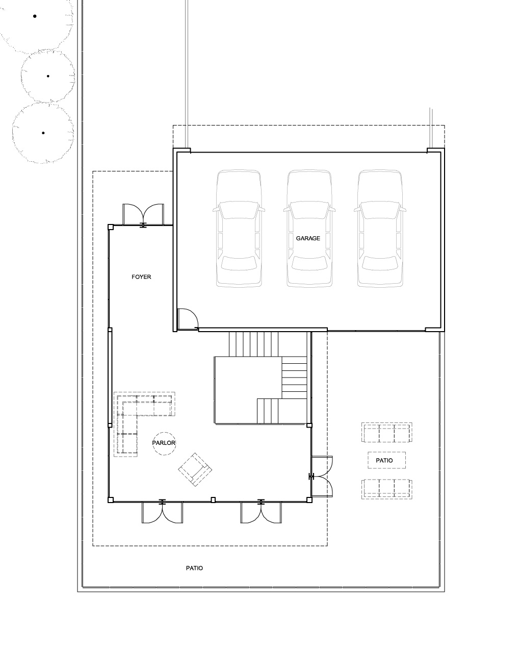
GROUND FLOOR
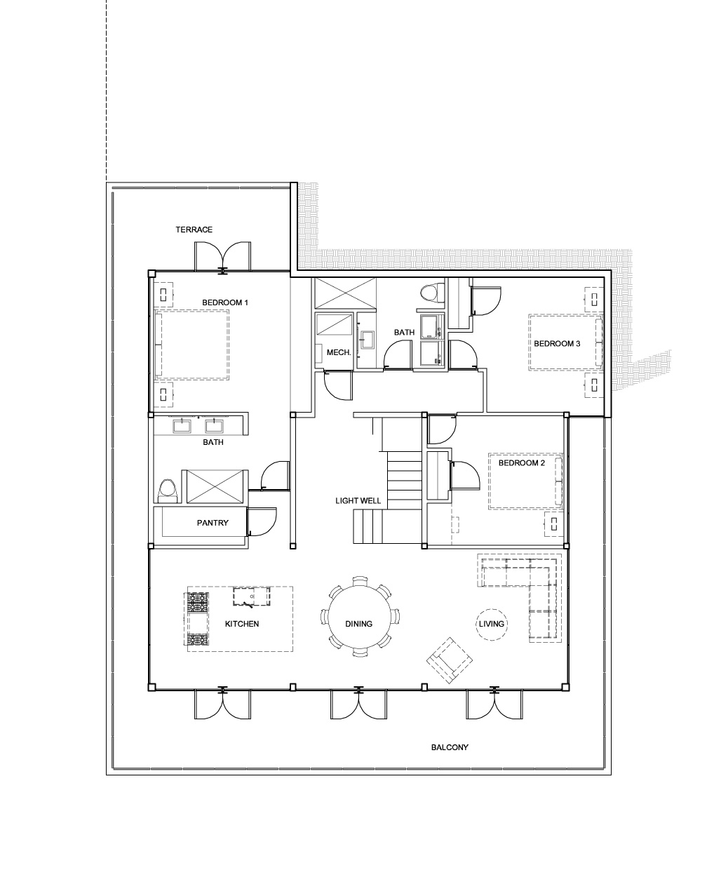
SECOND FLOOR
SECTION

Leave a comment